Krb plynový prosklený Karma Noblesse 90 LF (prosklení na levé straně do tvaru ˝L˝), o výkonu 4,3 - 13,2 kw, černý vnitřní panel

Prosklený plynový krb Karma Noblesse 90 FR je exkluzivní vestavný plynový krb s levostranným rohovým prosklením do tvaru „L“, který nabízí jedinečné spojení velkorysých rozměrů, špičkových technologií a mimořádně realistického ohně. Díky výkonu v rozsahu 4,3 až 13,2 kW je ideální volbou pro vytápění rozměrných obytných a reprezentativních prostor, kde se klade důraz nejen na výkon, ale především na estetiku a komfort. Krb je určen pro provoz na zemní plyn a představuje prémiové řešení pro moderní i architektonicky náročné interiéry.

Hlavní výhody:

  • levostranné rohové prosklení do tvaru „L“ pro výrazný vizuální efekt
  • Vysoký výkon 4,3–13,2 kW vhodný i pro velké otevřené prostory
  • Exkluzivní 3D Premium hořák s vysokým a objemným plamenem
  • Smart ovládání prostřednictvím Wi-Fi a mobilní aplikace
  • Automatické udržování nastavené teploty
  • Čistý provoz bez popela, kouře a prachu


Design a atmosféra:

  • Rohové levostranné prosklení umožňuje pohled na oheň z více úhlů
  • Keramická polena různých velikostí s autentickou strukturou
  • Černé uhlíky, vermikulit a žhnoucí vlákna pro maximální realističnost
  • Design pozadí – černý vnitřní panel zvýrazňující hloubku plamenů


Ovládání a technologie:

  • Pokročilé smart ovládání pomocí mobilní aplikace
  • Manuální, termostatický, programovací a ECO režim
  • Časovač, uživatelské profily a dětský zámek
  • Možnost regulace výkonu přepínáním jednotlivých hořáků
  • ECO mód pro úsporný provoz při zachování maximálního komfortu


Komfort a provoz:

  • Uzavřený spalovací systém bez znečištění interiéru
  • Vhodné řešení i pro alergiky
  • Bez nutnosti přikládání paliva a složité údržby
  • Tichý provoz bez ventilátoru


Instalace a využití:

  • Flexibilní umístění bez nutnosti klasického komínu
  • Možnost vertikálního odtahu přes střechu nebo horizontálního přes zeď
  • Vhodné do moderních interiérů i historických objektů
  • Ideální pro městské zástavby s omezením topení tuhými palivy


Technické parametry:

  • Výkon (min./max.): 4,3–13,2 kW
  • Spotřeba plynu (min./max.): 0,60–1,57 m2/h
  • Účinnost: 87 %
  • Připojení plynu: G 1/2˝
  • Elektrické připojení: 230 V / možnost bateriového provozu
  • Dálkové ovládání: ano
  • Ventilátor: ne
  • Průměr odtahu: 130 / 200 mm nebo 2x 120 mm
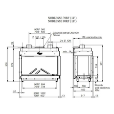
  • Rozměry (Š x V x H): 1062 x 908 x 517 mm
  • Hmotnost: 137 kg
  • Energetická třída: B
  • Design pozadí: černý vnitřní panel


Plynový krb Karma Noblesse 90 FR je výrazným architektonickým prvkem, který spojuje monumentální šířku, realistický oheň a inteligentní ovládání do dokonale vyváženého celku. Je ideální volbou pro ty, kteří chtějí dominantní krb s maximálním vizuálním dopadem a komfortem bez kompromisů.

Krbové vložky jsou oblíbené pro svou schopnost rychle vytopit místnost. Jejich moderní vzhled přináší do domova eleganci a komfort.

Richter + Frenzel - vaši průvodci vytápěním. Naše rozvody vody a topení jsou navrženy pro optimální tepelný komfort ve vašem domově.

Více o produktu

Není skladem

Katalogová cena:
210 025,75 Kč s DPH

Aktuální prodejní cena:
197 424,21 s DPH

163 160,50 Kč bez DPH

KS

Rozdíl mezi katalogovou a prodejní cenou: 6%
Nejnižší prodejní cena za 30 dní: 191 674,65 Kč s DPH

Kód zboží:

821730

Kód dodavatele:

985-00-00

EAN:

Značka:

Karma

Série:

Karma - Noblesse

Země původu:

Česká republika

Popis produktu

Technické parametry

Přípojka odvodu spalin

200 mm

Barva

Černá

Průměrná spotřeba ZP

1,1 m3/h

Energetická třída

B

Energetická účinnost

87 %

Elektrické napájení

230 V

Přípojka plynu

G 1/2"

Vytápěný prostor

350 m3

Příkon

5,3 - 15 kW

Stupeň krytí

IP20

Hmotnost

150,7 kg

Hloubka/délka

517 mm

Šířka

1 062 mm

Výška

908 mm

Proč nakupovat na Plano.cz

Spolupracujeme s profesionály

Spolupracujeme s profesionály

Jsme partnerem pro řemeslníky, firmy i domácí kutily. Nabízíme kvalitní a osvědčené produkty pro koupelny, vodu, topení, zahradu a dům.

Máme vše co potřebujete

Vše, co potřebujete na jednom místě

Od vodoinstalačních prvků po radiátory, od zahradních hadic po profesionální nářadí – u nás najdete vše pro dům, byt i zahradu.

Optiline a Plano

Naše vlastní značka = kvalita za férovou cenu

Produkty Optiline, Plano a For zaručují precizní zpracování a výhodnou cenu. Nakupujete přímo od specialistů pro koupelny, vodu a topení.

Doplňkové služby

Odborné služby a individuální přístup

Pomůžeme s výběrem produktů, vyřízením dotací, vytvořením 3D návrhu koupelny a poradíme Vám s každým projektem.

Výhradní distributor sanitárních produktů Kermi v ČR.