Ohřívač plynový stacionární Ariston SGA BF X 160 EE, 155L, 5,12KW

Výkonný zásobníkový bojler s uzavřenou spalovací komorou a odtahem spalin přes zeď, který zajistí dostatek teplé vody i pro větší domácnosti. Díky robustní konstrukci, kvalitní smaltované nádobě a hořčíkové anodě nabízí dlouhou životnost, bezpečný provoz a úsporné řešení bez nutnosti elektrického napájení.

Hlavní výhody

  • Uzavřená spalovací komora – bezpečný a efektivní provoz
  • Odtah spalin přes zeď – ideální pro objekty bez komína
  • Piezoelektrické zapalování – žádná potřeba elektřiny
  • Snadná regulace teploty pomocí přístupného termostatu
  • Odolná smaltovaná nádoba s hořčíkovou anodou
  • Vyrobeno v Itálii – důraz na kvalitu a dlouhou životnost
  • Nízké emise NOx dle směrnice ErP 2018


Použití

  • Vhodný pro domácnosti a menší provozy s vyšší potřebou teplé vody
  • Pro připojení na zemní plyn nebo LPG (přestavbová sada v balení)


Charakteristika

  • Stacionární plynový bojler s uzavřenou spalovací komorou
  • Provoz bez elektrického připojení
  • Kvalitní smaltovaná ocelová nádoba zaručuje dlouhou životnost
  • Bezpečný, tichý a úsporný provoz


Technické parametry

  • Objem: 155 l
  • Výkon: 5,12 kW
  • Příkon: 5,5 kW
  • Doba ohřevu delta T=45 °C: 0:48 h
  • Trvalý průtok vody (40 °C): 110 l/h
  • Smíšená voda V40: 213 l
  • Max. provozní tlak: 8 bar
  • Spotřeba zemního plynu: 0,53 m3/h
  • Spotřeba PB: 0,39 kg/h
  • Energetická třída: B
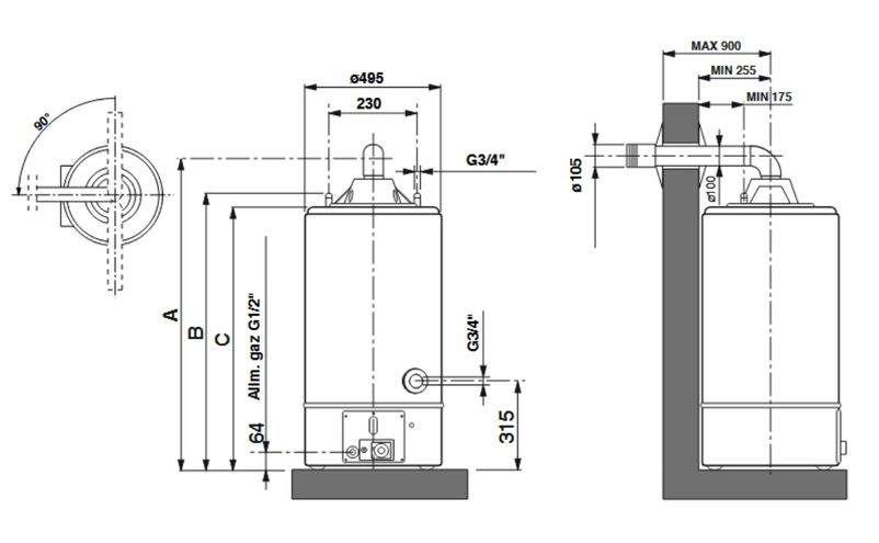
  • Rozměry (VxŠxH): 1500 x 495 x 495 mm
  • Hmotnost: 56 kg
  • Připojení spalin: odtah přes zeď
  • Barva: bílá


Ohřívač zajišťuje stálý přísun teplé vody pro každodenní použití. Umožňuje komfortní hygienu, vaření i úklid. Přináší pohodlí bez závislosti na centrálním systému.

Vytápění s ohledem na budoucnost naleznete u Richter + Frenzel. Nabízíme špičkové systémy pro rozvody vody a topení, které splňují nejvyšší standardy energetické účinnosti a ekologické šetrnosti.

Více o produktu

U Dodavatele

Katalogová cena:
48 000,70 Kč s DPH

Aktuální prodejní cena:
43 200,63 s DPH

35 703,00 Kč bez DPH

KS

Rozdíl mezi katalogovou a prodejní cenou: 10%
Nejnižší prodejní cena za 30 dní: 43 200,63 Kč s DPH

Kód zboží:

736914

Kód dodavatele:

3211035

EAN:

5414849824706

Značka:

Ariston

Série:

Ariston - ohřívače vody plynové

Země původu:

Itálie

Popis produktu

Technické parametry

Průměrná spotřeba PB

0,39 kg/h

Umístění

Stojící

Objem

155 l

Zátěžový profil

L

Energetická třída

B

Průtok

1,83 l/min

Přípojka plynu

G 1/2"

Max. provozní tlak

8 bar

Materiál

Smaltovaná ocel s titanem

Rozměry obalu

50 x 50 x 150 cm

Příkon

5,5 kW

Průměrná spotřeba ZP

0,53 m3/h

Přípojka vody

G 3/4"

Barva

Bílá

Průtokový ohřev vody

3,25 l/min

Hmotnost

56 kg

Hloubka/délka

495 mm

Šířka

495 mm

Výška

1 500 mm

Proč nakupovat na Plano.cz

Spolupracujeme s profesionály

Spolupracujeme s profesionály

Jsme partnerem pro řemeslníky, firmy i domácí kutily. Nabízíme kvalitní a osvědčené produkty pro koupelny, vodu, topení, zahradu a dům.

Máme vše co potřebujete

Vše, co potřebujete na jednom místě

Od vodoinstalačních prvků po radiátory, od zahradních hadic po profesionální nářadí – u nás najdete vše pro dům, byt i zahradu.

Optiline a Plano

Naše vlastní značka = kvalita za férovou cenu

Produkty Optiline, Plano a For zaručují precizní zpracování a výhodnou cenu. Nakupujete přímo od specialistů pro koupelny, vodu a topení.

Doplňkové služby

Odborné služby a individuální přístup

Pomůžeme s výběrem produktů, vyřízením dotací, vytvořením 3D návrhu koupelny a poradíme Vám s každým projektem.

PLANO_Kreslicí plátno 1.svg
OPTILINE_Kreslicí plátno 1.svg