Plynové topidlo Karma Beta 2MC Mechanik Comfort, o výkonu 2 kW, s odtahem spalin přes zeď a velmi jednoduchou obsluhou, antracit(sklo černé)

Plynové topidlo Karma Beta 2MC Mechanik Comfort kombinuje spolehlivé vytápění s atraktivním designem. Temně prosklený čelní panel, imitace uhlí a keramická hmota v ohništi vytvářejí realistický pohled na plameny, který dodá místnosti příjemnou atmosféru. Topidlo je plně mechanické, nevyžaduje elektrickou energii a je vhodné i do objektů s nepravidelným provozem.


Hlavní výhody:

  • Elegantní provedení antracit + černé sklo s efektem hořícího uhlí
  • Výkon 2 kW – ideální pro menší místnosti
  • Plně mechanická regulace bez elektroniky
  • Automatické udržování nastavené teploty
  • Provoz bez nutnosti elektrického připojení
  • Vysoká bezpečnost a spolehlivost

Použití:

  • Vytápění místností do objemu cca 40 m3
  • Rodinné domy, byty, chalupy a chaty
  • Prostory bez přívodu elektrické energie

Konstrukce a bezpečnost:

  • Plynotěsná spalovací komora z ocelového plechu
  • Oboustranně smaltované stěny spalovací komory
  • Nerezový plynový hořák
  • Bezpečnostní pojistka plamene – automatické uzavření plynu
  • Spalovací okruh oddělený od vzduchu v místnosti

Charakteristika:

  • Nástěnné provedení
  • Odtah spalin přímo přes obvodovou zeď
  • Nasávání spalovacího vzduchu z venkovního prostoru
  • Mechanický termostat (13–38 °C)
  • Piezoelektrické zapalování a věčný plamínek

Technické parametry:

  • Jmenovitý tepelný výkon: 2,0 kW
  • Jmenovitý tepelný příkon: 2,3 kW
  • Účinnost: 87 %
  • Spotřeba – zemní plyn: 0,24 m3/h
  • Spotřeba – propan-butan: 0,18 kg/h
  • Vhodné pro místnosti: do 40 m3
  • Rozsah regulace teploty: 13 až 38 °C
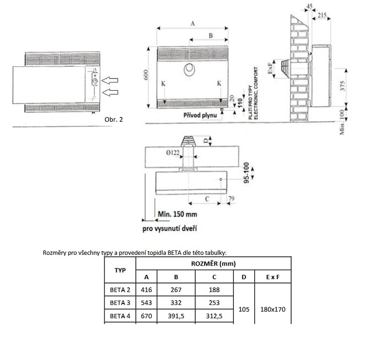
  • Průměr odtahu přes zeď: 122 mm
  • Střed odtahu od levého okraje: 149 mm
  • Max. tloušťka zdi: 820 mm
  • Připojení plynu: G 1/2˝ (vpravo dole)
  • Rozměry (Š x H x V): 416 x 215 x 600 mm
  • Hmotnost: 15 kg
  • Palivo: zemní plyn (možnost přestavby na PB)
  • Elektrické připojení: nevyžaduje
  • Záruka: 24 měsíců


Karma Beta 2MC Mechanik Comfort je ideální volbou pro ty, kteří hledají kompaktní, bezpečné a úsporné plynové topidlo s vizuálním efektem krbu. Spojuje jednoduchý provoz, vysokou účinnost a moderní vzhled do jednoho spolehlivého řešení.

Univerzální plynové topidlo s moderním designem a bezpečnostními prvky, jako je pojistka plamene či ochrana proti převrácení. Ideální pro komfortní a bezpečné vytápění.

Richter + Frenzel - váš partner pro účinné a ekologické vytápění. Naše systémy pro rozvody vody a topení jsou navrženy s důrazem na energetickou efektivitu.

Více o produktu

U Dodavatele

Katalogová cena:
17 663,46 Kč s DPH

Aktuální prodejní cena:
16 604,59 s DPH

13 722,80 Kč bez DPH

KS

Rozdíl mezi katalogovou a prodejní cenou: 6%
Nejnižší prodejní cena za 30 dní: 16 604,59 Kč s DPH

Kód zboží:

797364

Kód dodavatele:

1002BMCCZ

EAN:

Značka:

Karma

Série:

Karma - Beta

Země původu:

Česká republika

Popis produktu

Technické parametry

Barva

Antracit

Příkon

2,3 kW

Přípojka plynu

G 1/2"

Elektrické napájení

N/A

Energetická účinnost

87 %

Energetická třída

C

Průměrná spotřeba ZP

0,24 m3/h

Vytápěný prostor

40 m3

Přípojka odvodu spalin

122 mm

Stupeň krytí

Bez krytí

Hmotnost

16,5 kg

Hloubka/délka

215 mm

Šířka

416 mm

Výška

600 mm

Proč nakupovat na Plano.cz

Spolupracujeme s profesionály

Spolupracujeme s profesionály

Jsme partnerem pro řemeslníky, firmy i domácí kutily. Nabízíme kvalitní a osvědčené produkty pro koupelny, vodu, topení, zahradu a dům.

Máme vše co potřebujete

Vše, co potřebujete na jednom místě

Od vodoinstalačních prvků po radiátory, od zahradních hadic po profesionální nářadí – u nás najdete vše pro dům, byt i zahradu.

Optiline a Plano

Naše vlastní značka = kvalita za férovou cenu

Produkty Optiline, Plano a For zaručují precizní zpracování a výhodnou cenu. Nakupujete přímo od specialistů pro koupelny, vodu a topení.

Doplňkové služby

Odborné služby a individuální přístup

Pomůžeme s výběrem produktů, vyřízením dotací, vytvořením 3D návrhu koupelny a poradíme Vám s každým projektem.