Plynové topidlo Karma Gamat S50, o výkonu 5,3 kW, s odtahem spalin do komína s přirozeným tahem, mechanická regulace teploty, slonová kost

Plynové topidlo Karma Gamat S50 je konvekční plynové topidlo o výkonu 5,3 kW, určené k připojení do komína s přirozeným tahem, vhodné pro vytápění větších obytných prostor, rodinných domů, chat a rekreačních objektů. Jedná se o spotřebič s otevřenou spalovací komorou, u kterého je spalovací vzduch přiváděn z místnosti, v níž je topidlo umístěno, přičemž mechanická regulace teploty pomocí termostatu zajišťuje jednoduchý, spolehlivý a zcela nezávislý provoz bez nutnosti připojení k elektrické energii. Topidlo je vhodné pro místnosti o objemu až 100 m3 a vyniká vysokým výkonem i robustní konstrukcí.


Hlavní výhody:

  • Vysoký topný výkon vhodný pro větší prostory
  • Mechanická regulace teploty pomocí termostatu
  • Provoz bez nutnosti elektrického připojení
  • Otevřená spalovací komora s přirozeným tahem komína
  • Smaltovaný výměník pro dlouhou životnost
  • Komínové čidlo a bezpečnostní plynový ventil

Použití:

  • Vytápění místností do objemu až 100 m3
  • Rodinné domy, chaty, chalupy a rekreační objekty
  • Prostory s funkčním komínem s přirozeným tahem

Bezpečnost a konstrukce:

  • Otevřená spalovací komora
  • Smaltovaný výměník
  • Komínové čidlo (microswitch) jako pojistka zpětného tahu
  • Plynový ventil s termoelektrickou bezpečnostní pojistkou
  • Kryt z ocelového plechu chráněného práškovými barvami

Charakteristika:

  • Volně stojící provedení s umístěním na podlahu
  • Možnost pravého, levého nebo zadního odvodu spalin do komína
  • Mechanický termostat s rozsahem regulace 13 až 38 °C
  • Standardní provedení v barvě slonová kost

Technické parametry:

  • Jmenovitý tepelný výkon: 5,3 kW
  • Jmenovitý tepelný příkon: 6,1 kW
  • Vhodné pro místnosti: do 100 m3
  • Spotřeba zemní plyn: 0,63 m3/h
  • Spotřeba propan-butan: 0,48 kg/h
  • Rozsah regulace teploty: 13 až 38 °C
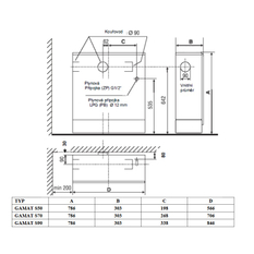
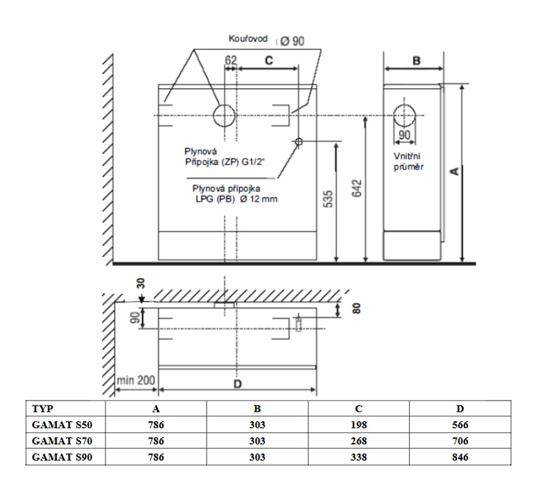
  • Připojení plynu: G 1/2˝ (vpravo dole)
  • Průměr odvodu spalin: 90 mm
  • Rozměry (Š x H x V): 566 x 273 x 786 mm
  • Hmotnost: 33 kg
  • Palivo: zemní plyn (možnost přestavby na PB)
  • Elektrické připojení: nevyžaduje
  • Záruka: 24 měsíců


Plynové topidlo Karma Gamat S50 je výkonné, spolehlivé a bezpečné řešení vytápění větších prostor, ideální všude tam, kde je k dispozici komín s přirozeným tahem a je kladen důraz na jednoduchý provoz bez závislosti na elektrické energii.

Praktické a výkonné plynové topidlo vhodné pro celoroční využití. Nabízí jednoduché zapojení, okamžitý výkon a bezpečný provoz bez složité údržby.

Richter + Frenzel - vaše spolehlivé řešení vytápění. Naše produkty pro rozvody vody a topení splňují nejvyšší standardy kvality.

Více o produktu

U Dodavatele

Katalogová cena:
16 171,65 Kč s DPH

Aktuální prodejní cena:
15 201,35 s DPH

12 563,10 Kč bez DPH

KS

Rozdíl mezi katalogovou a prodejní cenou: 6%
Nejnižší prodejní cena za 30 dní: 15 201,35 Kč s DPH

Kód zboží:

283854

Kód dodavatele:

CZGAMATS50

EAN:

8591219050051

Značka:

Karma

Série:

Karma - Gamat

Země původu:

Česká republika

Popis produktu

Technické parametry

Příkon

6,1 kW

Energetická třída

C

Elektrické napájení

N/A

Přípojka plynu

G 1/2"

Průměrná spotřeba ZP

0,63 m3/h

Energetická účinnost

87 %

Vytápěný prostor

100 m3

Přípojka odvodu spalin

90 mm

Stupeň krytí

Bez krytí

Barva

Slonová kost (Ivory)

Hmotnost

36,3 kg

Hloubka/délka

273 mm

Šířka

566 mm

Výška

786 mm

Proč nakupovat na Plano.cz

Spolupracujeme s profesionály

Spolupracujeme s profesionály

Jsme partnerem pro řemeslníky, firmy i domácí kutily. Nabízíme kvalitní a osvědčené produkty pro koupelny, vodu, topení, zahradu a dům.

Máme vše co potřebujete

Vše, co potřebujete na jednom místě

Od vodoinstalačních prvků po radiátory, od zahradních hadic po profesionální nářadí – u nás najdete vše pro dům, byt i zahradu.

Optiline a Plano

Naše vlastní značka = kvalita za férovou cenu

Produkty Optiline, Plano a For zaručují precizní zpracování a výhodnou cenu. Nakupujete přímo od specialistů pro koupelny, vodu a topení.

Doplňkové služby

Odborné služby a individuální přístup

Pomůžeme s výběrem produktů, vyřízením dotací, vytvořením 3D návrhu koupelny a poradíme Vám s každým projektem.