Plynové topidlo Karma Gamat S70, o výkonu 7,0 kW, s odtahem spalin do komína s přirozeným tahem, mechanická regulace teploty, slonová kost

Plynové topidlo Karma Gamat S70 je konvekční plynové topidlo o výkonu 7,0 kW, určené k připojení do komína s přirozeným tahem, vhodné pro vytápění větších obytných prostor, rodinných domů, chat a rekreačních objektů. Jedná se o spotřebič s otevřenou spalovací komorou, u kterého je spalovací vzduch přiváděn z místnosti, v níž je topidlo umístěno, přičemž mechanická regulace teploty pomocí termostatu zajišťuje jednoduchý, spolehlivý a zcela nezávislý provoz bez nutnosti připojení k elektrické energii. Topidlo je vhodné pro místnosti o objemu až 130 m3 a nabízí vysoký výkon i robustní konstrukci.


Hlavní výhody:

  • Vysoký topný výkon vhodný pro velké prostory
  • Mechanická regulace teploty pomocí termostatu
  • Provoz bez nutnosti elektrického připojení
  • Otevřená spalovací komora s přirozeným tahem komína
  • Smaltovaný výměník pro dlouhou životnost
  • Komínové čidlo a bezpečnostní plynový ventil

Použití:

  • Vytápění místností do objemu až 130 m3
  • Rodinné domy, chaty, chalupy a rekreační objekty
  • Prostory s funkčním komínem s přirozeným tahem

Bezpečnost a konstrukce:

  • Otevřená spalovací komora
  • Smaltovaný výměník
  • Komínové čidlo (microswitch) jako pojistka zpětného tahu
  • Plynový ventil s termoelektrickou bezpečnostní pojistkou
  • Kryt z ocelového plechu chráněného práškovými barvami

Charakteristika:

  • Volně stojící provedení s umístěním na podlahu
  • Možnost pravého, levého nebo zadního odvodu spalin do komína
  • Mechanický termostat s rozsahem regulace 13 až 38 °C
  • Standardní provedení v barvě slonová kost

Technické parametry:

  • Jmenovitý tepelný výkon: 7,0 kW
  • Jmenovitý tepelný příkon: 8,15 kW
  • Vhodné pro místnosti: do 130 m3
  • Spotřeba zemní plyn: 0,86 m3/h
  • Spotřeba propan-butan: 0,64 kg/h
  • Rozsah regulace teploty: 13 až 38 °C
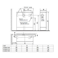
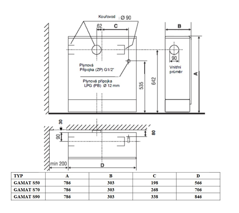
  • Připojení plynu: G 1/2˝ (vpravo dole)
  • Průměr odvodu spalin: 90 mm
  • Rozměry (Š x H x V): 706 x 273 x 786 mm
  • Hmotnost: 40 kg
  • Palivo: zemní plyn (možnost přestavby na PB)
  • Elektrické připojení: nevyžaduje
  • Záruka: 24 měsíců


Plynové topidlo Karma Gamat S70 je výkonné, odolné a bezpečné řešení vytápění velmi prostorných místností, ideální všude tam, kde je k dispozici komín s přirozeným tahem a je kladen důraz na jednoduchý provoz bez závislosti na elektrické energii.

Plynové topidlo poskytuje rychlé a efektivní vytápění v interiéru i exteriéru. Díky jednoduchému ovládání a spolehlivému výkonu je ideální volbou pro domácnosti, dílny i rekreační objekty.

Moderní technologie pro vaše vytápění - Richter + Frenzel. Nabízíme inovativní systémy pro rozvody vody a topení.

Více o produktu

U Dodavatele

Katalogová cena:
16 931,53 Kč s DPH

Aktuální prodejní cena:
15 915,64 s DPH

13 153,42 Kč bez DPH

KS

Rozdíl mezi katalogovou a prodejní cenou: 6%
Nejnižší prodejní cena za 30 dní: 15 915,64 Kč s DPH

Kód zboží:

283855

Kód dodavatele:

CZGAMATS70

EAN:

8591219050075

Značka:

Karma

Série:

Karma - Gamat

Země původu:

Česká republika

Popis produktu

Technické parametry

Stupeň krytí

Bez krytí

Průměrná spotřeba ZP

0,86 m3/h

Energetická účinnost

86 %

Elektrické napájení

N/A

Vytápěný prostor

130 m3

Přípojka odvodu spalin

90 mm

Barva

Slonová kost (Ivory)

Příkon

8,15 kW

Energetická třída

C

Přípojka plynu

G 1/2"

Hmotnost

44 kg

Hloubka/délka

273 mm

Šířka

706 mm

Výška

786 mm

Proč nakupovat na Plano.cz

Spolupracujeme s profesionály

Spolupracujeme s profesionály

Jsme partnerem pro řemeslníky, firmy i domácí kutily. Nabízíme kvalitní a osvědčené produkty pro koupelny, vodu, topení, zahradu a dům.

Máme vše co potřebujete

Vše, co potřebujete na jednom místě

Od vodoinstalačních prvků po radiátory, od zahradních hadic po profesionální nářadí – u nás najdete vše pro dům, byt i zahradu.

Optiline a Plano

Naše vlastní značka = kvalita za férovou cenu

Produkty Optiline, Plano a For zaručují precizní zpracování a výhodnou cenu. Nakupujete přímo od specialistů pro koupelny, vodu a topení.

Doplňkové služby

Odborné služby a individuální přístup

Pomůžeme s výběrem produktů, vyřízením dotací, vytvořením 3D návrhu koupelny a poradíme Vám s každým projektem.