Volně stojící plynová krbová kachlová kamna Karma Art PB, s výkonem 4,2 kW, odtah spalin vyveden do komína, bílá

Volně stojící plynová krbová kachlová kamna Karma Art PB jsou designová plynová krbová kamna určená pro provoz na propan-butan o výkonu 4,2 kW, s odtahem spalin vyvedeným do komína a nasáváním spalovacího vzduchu z místnosti. Kamna nevyžadují připojení k elektrické energii, odolávají teplotám pod bodem mrazu a jsou vhodná pro vytápění obytných prostor, rodinných domů a rekreačních objektů do objemu až 80 m2. Spalovací komora doplněná keramickými poleny nad hořákem umožňuje realistický pohled na planoucí oheň srovnatelný s krby na dřevo, přičemž termostatická regulace zajišťuje automatické udržování nastavené teploty v místnosti.

Hlavní výhody:

  • Provoz na propan-butan
  • Odtah spalin do komína
  • Automatické udržování nastavené teploty
  • Provoz bez nutnosti elektrického připojení
  • Vysoká bezpečnost provozu
  • Prodloužená záruka 36 měsíců


Použití:

  • Vytápění obytných prostor do 80 m2
  • Rodinné domy, chaty a chalupy
  • Objekty s komínem s přirozeným tahem


Bezpečnost a konstrukce:

  • Bezpečnostní pojistka proti zpětnému tahu komína
  • Bezpečnostní pojistka plamene
  • Keramická polena nad hořákem
  • Robustní konstrukce spalovací komory


Charakteristika:

  • Volně stojící provedení
  • Zadní odvod spalin do komína
  • Termostatická regulace teploty
  • Piezoelektrické zapalování s věčným plamínkem
  • Dekorativní kachlové obložení v bílé barvě


Technické parametry:

  • Jmenovitý tepelný výkon: 4,2 kW
  • Jmenovitý tepelný příkon: 5,1 kW
  • Vytápěný prostor: až 80 m2
  • Spotřeba propan-butan: 0,48 kg/h
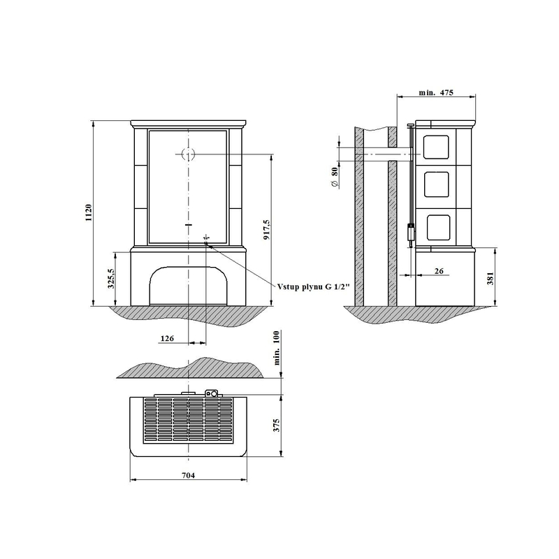
  • Připojení plynu: G 1/2˝
  • Průměr odtahu: 80 mm
  • Rozměry (H x Š x V): 375 x 704 x 1120 mm
  • Hmotnost: 100 kg
  • Elektrické připojení: nevyžaduje
  • Záruka: 36 měsíců


Plynová krbová kachlová kamna Karma Art PB představují elegantní a komfortní řešení vytápění na propan-butan s tradičním vzhledem kachlových kamen, vysokou bezpečností provozu a jednoduchou obsluhou.

Krbová kamna jsou známá svou vysokou účinností a nízkými emisemi. Jejich instalace je snadná a rychlá.

Ekologické vytápění od Richter + Frenzel. Naše rozvody vody a topení jsou navrženy s ohledem na udržitelnost.

Více o produktu

U Dodavatele

Katalogová cena:
95 408,50 Kč s DPH

Aktuální prodejní cena:
89 683,99 s DPH

74 119,00 Kč bez DPH

KS

Rozdíl mezi katalogovou a prodejní cenou: 6%
Nejnižší prodejní cena za 30 dní: 89 683,99 Kč s DPH

Kód zboží:

821649

Kód dodavatele:

CZKARMAARTPB

EAN:

Značka:

Karma

Série:

Karma - Art

Země původu:

Česká republika

Popis produktu

Technické parametry

Elektrické napájení

N/A

Energetická třída

D

Příkon

5,1 kW

Energetická účinnost

82 %

Přípojka plynu

G 1/2"

Vytápěný prostor

80 m3

Přípojka odvodu spalin

80 mm

Barva

Bílá

Stupeň krytí

Bez krytí

Hmotnost

110 kg

Hloubka/délka

704 mm

Šířka

375 mm

Výška

1 120 mm

Proč nakupovat na Plano.cz

Spolupracujeme s profesionály

Spolupracujeme s profesionály

Jsme partnerem pro řemeslníky, firmy i domácí kutily. Nabízíme kvalitní a osvědčené produkty pro koupelny, vodu, topení, zahradu a dům.

Máme vše co potřebujete

Vše, co potřebujete na jednom místě

Od vodoinstalačních prvků po radiátory, od zahradních hadic po profesionální nářadí – u nás najdete vše pro dům, byt i zahradu.

Optiline a Plano

Naše vlastní značka = kvalita za férovou cenu

Produkty Optiline, Plano a For zaručují precizní zpracování a výhodnou cenu. Nakupujete přímo od specialistů pro koupelny, vodu a topení.

Doplňkové služby

Odborné služby a individuální přístup

Pomůžeme s výběrem produktů, vyřízením dotací, vytvořením 3D návrhu koupelny a poradíme Vám s každým projektem.

Vážení zákazníci, během velikonočních svátků neexpedujeme zboží. Děkujeme za pochopení a přejeme veselé Velikonoce.