Volně stojící plynová krbová kamna Karma Decore W ZP, s výkonem 5,0 kW, odtah spalin přes zeď, granit

Volně stojící plynová krbová kamna Karma Decore W ZP jsou designová plynová krbová kamna určená pro provoz na zemní plyn o výkonu 5,0 kW, s odtahem spalin vyvedeným přes zeď a nasáváním spalovacího vzduchu z venkovního prostředí. Kamna nevyžadují připojení k elektrické energii, odolávají teplotám pod bodem mrazu a jsou vhodná pro vytápění obytných prostor, rodinných domů a rekreačních objektů do objemu až 100 m2. Konstrukce spalovací komory doplněná keramickými poleny nad hořákem umožňuje realistický pohled na planoucí oheň srovnatelný s krby na dřevo, přičemž termostatická regulace zajišťuje automatické udržování nastavené teploty v místnosti.

Hlavní výhody:

  • Provoz na zemní plyn
  • Odtah spalin přes zeď bez nutnosti komína
  • Automatické udržování nastavené teploty
  • Provoz bez nutnosti elektrického připojení
  • Vysoká bezpečnost provozu
  • Prodloužená záruka 36 měsíců


Použití:

  • Vytápění obytných prostor do 100 m2
  • Rodinné domy, chaty a chalupy
  • Objekty bez komína


Bezpečnost a konstrukce:

  • Bezpečnostní pojistka odvodu spalin
  • Bezpečnostní pojistka plamene
  • Uzavřený systém spalování s přívodem vzduchu zvenčí
  • Keramická polena nad hořákem


Charakteristika:

  • Volně stojící provedení
  • Zadní odtah spalin přes zeď
  • Termostatická regulace teploty
  • Piezoelektrické zapalování s věčným plamínkem
  • Dekorativní obklad z přírodního kamene Granit v černé barvě se spojovacími prvky z nerezu


Technické parametry:

  • Jmenovitý tepelný výkon: 5,0 kW
  • Jmenovitý tepelný příkon: 6,1 kW
  • Vytápěný prostor: až 100 m2
  • Spotřeba zemní plyn: 0,64 m2/h
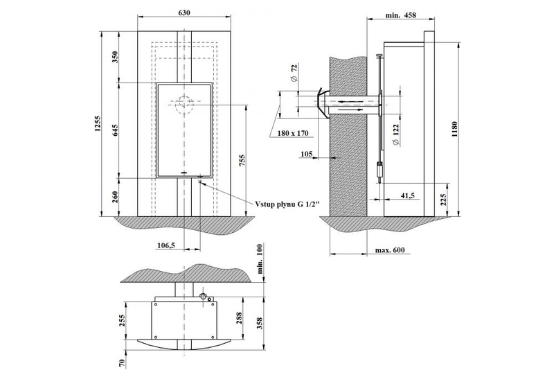
  • Připojení plynu: G 1/2˝
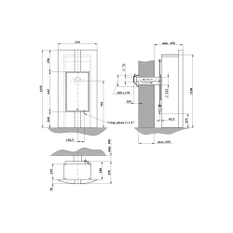
  • Průměr odtahu: 80 mm
  • Umístění odtahu: zadní
  • Odstup od zdi: 100 mm
  • Rozměry (H x Š x V): 358 x 630 x 1255 mm
  • Hmotnost: 155 kg
  • Elektrické připojení: nevyžaduje
  • Záruka: 36 měsíců


Plynová krbová kamna Karma Decore W ZP představují luxusní řešení vytápění bez nutnosti komína, které spojuje masivní kamenný obklad Granit, komfort automatické regulace teploty a vysokou bezpečnost plynového provozu.

Krbová kamna poskytují rychlé a rovnoměrné vytápění. Jsou ideální pro vytápění menších i větších prostor.

Richter + Frenzel - vaši průvodci vytápěním. Naše rozvody vody a topení jsou navrženy pro optimální tepelný komfort ve vašem domově.

Více o produktu

U Dodavatele

Katalogová cena:
125 283,40 Kč s DPH

Aktuální prodejní cena:
117 766,40 s DPH

97 327,60 Kč bez DPH

KS

Rozdíl mezi katalogovou a prodejní cenou: 6%
Nejnižší prodejní cena za 30 dní: 117 766,00 Kč s DPH

Kód zboží:

821650

Kód dodavatele:

CZKARMADECOREWZP

EAN:

Značka:

Karma

Série:

Karma - Decore

Země původu:

Česká republika

Popis produktu

Technické parametry

Vytápěný prostor

100 m3

Přípojka odvodu spalin

80 mm

Příkon

6,1 kW

Průměrná spotřeba ZP

0,64 m3/h

Barva

Černý granit

Stupeň krytí

Bez krytí

Energetická třída

D

Přípojka plynu

G 1/2"

Elektrické napájení

N/A

Energetická účinnost

82 %

Hmotnost

170,5 kg

Hloubka/délka

358 mm

Šířka

630 mm

Výška

1 255 mm

Proč nakupovat na Plano.cz

Spolupracujeme s profesionály

Spolupracujeme s profesionály

Jsme partnerem pro řemeslníky, firmy i domácí kutily. Nabízíme kvalitní a osvědčené produkty pro koupelny, vodu, topení, zahradu a dům.

Máme vše co potřebujete

Vše, co potřebujete na jednom místě

Od vodoinstalačních prvků po radiátory, od zahradních hadic po profesionální nářadí – u nás najdete vše pro dům, byt i zahradu.

Optiline a Plano

Naše vlastní značka = kvalita za férovou cenu

Produkty Optiline, Plano a For zaručují precizní zpracování a výhodnou cenu. Nakupujete přímo od specialistů pro koupelny, vodu a topení.

Doplňkové služby

Odborné služby a individuální přístup

Pomůžeme s výběrem produktů, vyřízením dotací, vytvořením 3D návrhu koupelny a poradíme Vám s každým projektem.

Vážení zákazníci, během velikonočních svátků neexpedujeme zboží. Děkujeme za pochopení a přejeme veselé Velikonoce.