Volně stojící plynová krbová kamna Karma Decore ZP, s výkonem 5,0 kW, odtah spalin vyveden do komína, granit

Volně stojící plynová krbová kamna Karma Decore ZP jsou designová plynová krbová kamna určená pro provoz na zemní plyn o výkonu 5,0 kW, s odtahem spalin vyvedeným do komína a nasáváním spalovacího vzduchu z místnosti. Kamna nevyžadují připojení k elektrické energii, odolávají teplotám pod bodem mrazu a jsou vhodná pro vytápění obytných prostor, rodinných domů a rekreačních objektů do objemu až 100 m2. Spalovací komora doplněná keramickými poleny nad hořákem vytváří autentický pohled na planoucí oheň srovnatelný s krby na dřevo, přičemž termostatická regulace zajišťuje automatické udržování nastavené teploty v místnosti.

Hlavní výhody:

  • Provoz na zemní plyn
  • Odtah spalin do komína
  • Automatické udržování nastavené teploty
  • Provoz bez nutnosti elektrického připojení
  • Vysoká bezpečnost provozu
  • Prodloužená záruka 36 měsíců


Použití:

  • Vytápění obytných prostor do 100 m2
  • Rodinné domy, chaty a chalupy
  • Objekty s komínem s přirozeným tahem


Bezpečnost a konstrukce:

  • Bezpečnostní pojistka proti zpětnému tahu komína
  • Bezpečnostní pojistka plamene
  • Keramická polena nad hořákem
  • Robustní konstrukce spalovací komory


Charakteristika:

  • Volně stojící provedení
  • Zadní odvod spalin do komína
  • Termostatická regulace teploty
  • Piezoelektrické zapalování s věčným plamínkem
  • Dekorativní obklad z přírodního kamene Granit v černé barvě


Technické parametry:

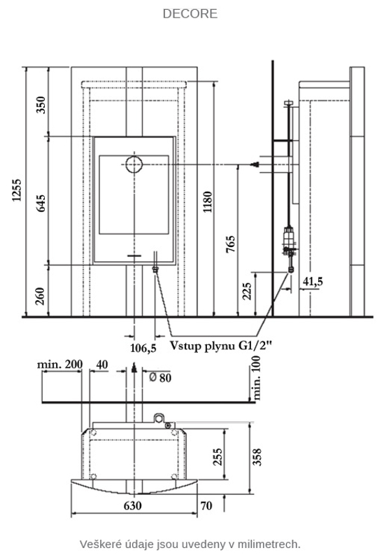
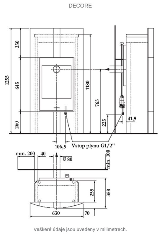
  • Jmenovitý tepelný výkon: 5,0 kW
  • Jmenovitý tepelný příkon: 6,1 kW
  • Vytápěný prostor: až 100 m2
  • Spotřeba zemní plyn: 0,64 m2/h
  • Připojení plynu: G 1/2˝
  • Průměr odtahu: 80 mm
  • Rozměry (H x Š x V): 358 x 630 x 1255 mm
  • Hmotnost: 155 kg
  • Elektrické připojení: nevyžaduje
  • Záruka: 36 měsíců


Plynová krbová kamna Karma Decore ZP jsou prémiovým řešením vytápění na zemní plyn, které spojuje luxusní kamenný obklad Granit, vysoký výkon a komfort automatické regulace teploty.

Krbová kamna kombinují tradiční vzhled s moderními technologiemi. Jsou energeticky úsporná a ekologická.

Kotel jako záruka pohody - Richter + Frenzel vám nabízí špičkové systémy pro rozvody vody a topení.

Více o produktu

U Dodavatele

Katalogová cena:
125 283,40 Kč s DPH

Aktuální prodejní cena:
117 766,40 s DPH

97 327,60 Kč bez DPH

KS

Rozdíl mezi katalogovou a prodejní cenou: 6%
Nejnižší prodejní cena za 30 dní: 117 766,00 Kč s DPH

Kód zboží:

821640

Kód dodavatele:

CZKARMADECOREZP

EAN:

Značka:

Karma

Série:

Karma - Decore

Země původu:

Česká republika

Popis produktu

Technické parametry

Vytápěný prostor

100 m3

Energetická účinnost

82 %

Stupeň krytí

Bez krytí

Barva

Černý granit

Přípojka plynu

G 1/2"

Příkon

6,1 kW

Energetická třída

D

Přípojka odvodu spalin

80 mm

Průměrná spotřeba ZP

0,64 m3/h

Elektrické napájení

N/A

Hmotnost

170,5 kg

Hloubka/délka

358 mm

Šířka

630 mm

Výška

1 255 mm

Proč nakupovat na Plano.cz

Spolupracujeme s profesionály

Spolupracujeme s profesionály

Jsme partnerem pro řemeslníky, firmy i domácí kutily. Nabízíme kvalitní a osvědčené produkty pro koupelny, vodu, topení, zahradu a dům.

Máme vše co potřebujete

Vše, co potřebujete na jednom místě

Od vodoinstalačních prvků po radiátory, od zahradních hadic po profesionální nářadí – u nás najdete vše pro dům, byt i zahradu.

Optiline a Plano

Naše vlastní značka = kvalita za férovou cenu

Produkty Optiline, Plano a For zaručují precizní zpracování a výhodnou cenu. Nakupujete přímo od specialistů pro koupelny, vodu a topení.

Doplňkové služby

Odborné služby a individuální přístup

Pomůžeme s výběrem produktů, vyřízením dotací, vytvořením 3D návrhu koupelny a poradíme Vám s každým projektem.

Vážení zákazníci, během velikonočních svátků neexpedujeme zboží. Děkujeme za pochopení a přejeme veselé Velikonoce.