Pyrolytický kotel na dřevo Rojek PK BIO 20 kW, 5. třída, SVT 21408

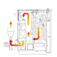
Pyrolytický kotel Rojek PK Bio 20 je vysoce účinný zplynovací kotel na dřevo, navržený pro ekologický a úsporný provoz. Díky moderní technologii zplynování paliva dosahuje účinnosti až 90 % při spalování dřeva a splňuje emisní třídu 5 dle ČSN EN 303-5. Tento kotel je ideální pro vytápění rodinných domů i menších komerčních objektů, kde je kladen důraz na nízké emise a snadnou obsluhu.

Hlavní výhody:

  • Ekologický provoz: Splňuje EKODESIGN a emisní třídu 5 pro dřevo.
  • Vysoká účinnost: Až 90 % při spalování dřeva.
  • Velká nakládací komora: Objem 130 litrů pro delší intervaly přikládání.
  • Univerzální palivo: Vhodný pouze pro dřevo.
  • Energetická třída: A+ pro dřevo.
  • Snadná údržba: Jednoduché čištění a přístup ke spalovacím částem.
  • Odolná konstrukce: Vyrobeno z kvalitní oceli pro dlouhou životnost.
  • Úsporný provoz: Optimalizované spalování pro nízké náklady na palivo.

Instalace:

Kotel doporučujeme kombinovat s akumulačním zásobníkem o objemu 1100 litrů pro optimální výkon. Kotel vyžaduje minimální provozní teplotu 63 °C a tah komína 15 Pa. Lze jej připojit k systému pomocí výstupů G 2˝.

Technické parametry:

  • Jmenovitý výkon: 20 kW (dřevo)
  • Účinnost: 90 % (dřevo)
  • Energetická třída: A+ (dřevo)
  • Sezónní energetická účinnost: 79 % (dřevo)
  • Emisní třída: 5 (dřevo)
  • Objem nakládací komory: 130 l
  • Max. délka polen: 530 mm
  • Průměr kouřovodu: 160 mm
  • Hmotnost: 505 kg
  • Rozměry: Š 916 mm, H 923 mm, V 1186 mm
  • Optimální objem akumulačního zásobníku: 1100 l
  • Spotřeba paliva: 4,8 kg/hod. (dřevo)
  • Min. tah komína: 15 Pa
  • Elektrický příkon: max. 57 W
  • Vodní objem kotle: 98 l
  • Maximální provozní přetlak: 2 bar
  • Minimální provozní teplota: 63 °C
Moderní technologie pro vaše vytápění - Richter + Frenzel. Nabízíme inovativní systémy pro rozvody vody a topení.

Kotel je klíčovým prvkem moderní domácnosti, poskytujícím teplotní pohodlí a teplou vodu pro běžné každodenní činnosti. Jeho úloha spočívá v přeměně energie z různých zdrojů na tepelnou energii, udržující interiéry domů v příjemné teplotě. Existuje rozmanitost typů kotlů, včetně plynových, elektrických a těch využívajících obnovitelné zdroje energie. Klíčovými prvky jsou hořák a tepelný výměník, které umožňují efektivní spalování paliva a přenos tepla na nosné médium. Moderní kotle jsou navrženy s ohledem na energetickou účinnost a bezpečnost, a profesionální instalace a pravidelná údržba jsou klíčové pro dlouhou životnost a spolehlivý provoz kotle.

Více o produktu

U Dodavatele

Katalogová cena:
116 039,00 Kč s DPH

Aktuální prodejní cena:
98 633,15 s DPH

81 515,00 Kč bez DPH

KS

Rozdíl mezi katalogovou a prodejní cenou: 15%
Nejnižší prodejní cena za 30 dní: 98 633,15 Kč s DPH

Kód zboží:

619852

Kód dodavatele:

1023202

EAN:

Značka:

Rojek

Kategorie:

Série:

Rojek - PK

Země původu:

Česká republika

Popis produktu

Technické parametry

Třída kotle dle ČSN EN 303-5

5

Energetická účinnost

90 %

Max.teplota (média, okolí)

90 °C

Objem vody v kotlovém tělese

98 l

Příkon

20 kW

Stavební délka

1 180 mm

Průměr kouřovodu

160 mm

Velikost připojení

2"

Dotovaný kotel

SVT 21408

Rozměry obalu

130 x 120 x 90 cm

Energetická třída

A+

Max. provozní tlak

2 bar

Průtokový ohřev vody

Bez průtokového ohřevu

Materiál

Ocel

Hmotnost

505 kg

Hloubka/délka

923 mm

Šířka

916 mm

Výška

1 186 mm

Proč nakupovat na Plano.cz

Spolupracujeme s profesionály

Spolupracujeme s profesionály

Jsme partnerem pro řemeslníky, firmy i domácí kutily. Nabízíme kvalitní a osvědčené produkty pro koupelny, vodu, topení, zahradu a dům.

Máme vše co potřebujete

Vše, co potřebujete na jednom místě

Od vodoinstalačních prvků po radiátory, od zahradních hadic po profesionální nářadí – u nás najdete vše pro dům, byt i zahradu.

Optiline a Plano

Naše vlastní značka = kvalita za férovou cenu

Produkty Optiline, Plano a For zaručují precizní zpracování a výhodnou cenu. Nakupujete přímo od specialistů pro koupelny, vodu a topení.

Doplňkové služby

Odborné služby a individuální přístup

Pomůžeme s výběrem produktů, vyřízením dotací, vytvořením 3D návrhu koupelny a poradíme Vám s každým projektem.